haus mieg
haus mieg mühlhausen
 1993 fertigstellung
 1993 auszeichnung guter bauten bda
 1996 auszeichnung lbs preis









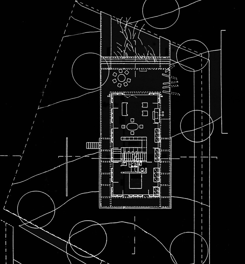
das haus mieg steht am dorfrand der gemeinde mühlhausen das grundstück wird durch die anschließenden streuobstwiesen, das parallel stehende feuerwehrhaus, sowie die starke hanglage geprägt. um baukörperlich das innere des hauses mit dem äußeren zu verbinden, also auch im außenraum wohnen zu können, wird der einfache, rechtwinklige körper des hauses mit einer großen, komplett umlaufenden veranda umstellt. diese bildet im norden den überdeckten eingang, im osten, süden und westen die verbindung zum garten. alle fenster-türen werden mit von außen schiebbaren lamellenkonstruktionen bestückt. in kombination mit den verandakonstruktionen werdeen verschiedene aus- und durchblicksmöglichkeiten bietet und völlig verändert werden kann. es entsteht ein spiel mit licht und raum.
projektdaten
Standort
mühlhausen
Bauherr
matthias mieg
 mühlhausen
Architekten
bächlemeid architekten stadtplaner bda
 karin meid-bächle, martin bächle
Bauzeit
1992 - 1993
Fotos
martin bächle
 konstanz